Piano organizzativo scuola primaria Don Milani
Ingressi/uscite
Per l’ingresso e l’uscita da scuola si utilizzeranno gli ingressi disponibili indicati nella planimetria sottostante.
- Gli insegnanti accoglieranno i bambini nei punti accoglienza indicati.
- I genitori possono sostare davanti alla scuola per il solo tempo richiesto per consegnare e prelevare i bambini da scuola.
ENTRATA
Al mattino i genitori accompagneranno i bambini all'ingresso di riferimento e aspetteranno il suono della campanella fuori dall’edificio.
- Accoglienza alunni nei punti di raccolta indicati: 8:30
- Chiusura cancelli: ore 8:40
I bambini troveranno nei punti di raccolta indicati dalla segnaletica la propria insegnante al suono della campanella e si recheranno in classe senza sostare nell’atrio e/o nei corridoi. I ritardatari saranno accolti all’ingresso principale e i genitori dovranno affidarli al personale ATA. I genitori dei ritardatari abituali saranno convocati dal Dirigente Scolastico.
USCITA
Per l’uscita pomeridiana i genitori attenderanno i bambini nello spazio apposito.
- Uscita: ore 16:30
I genitori dei ritardatari abituali saranno convocati dal Dirigente Scolastico.

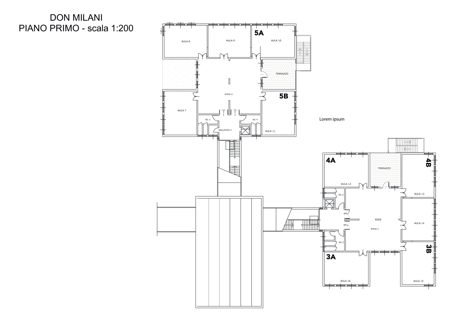
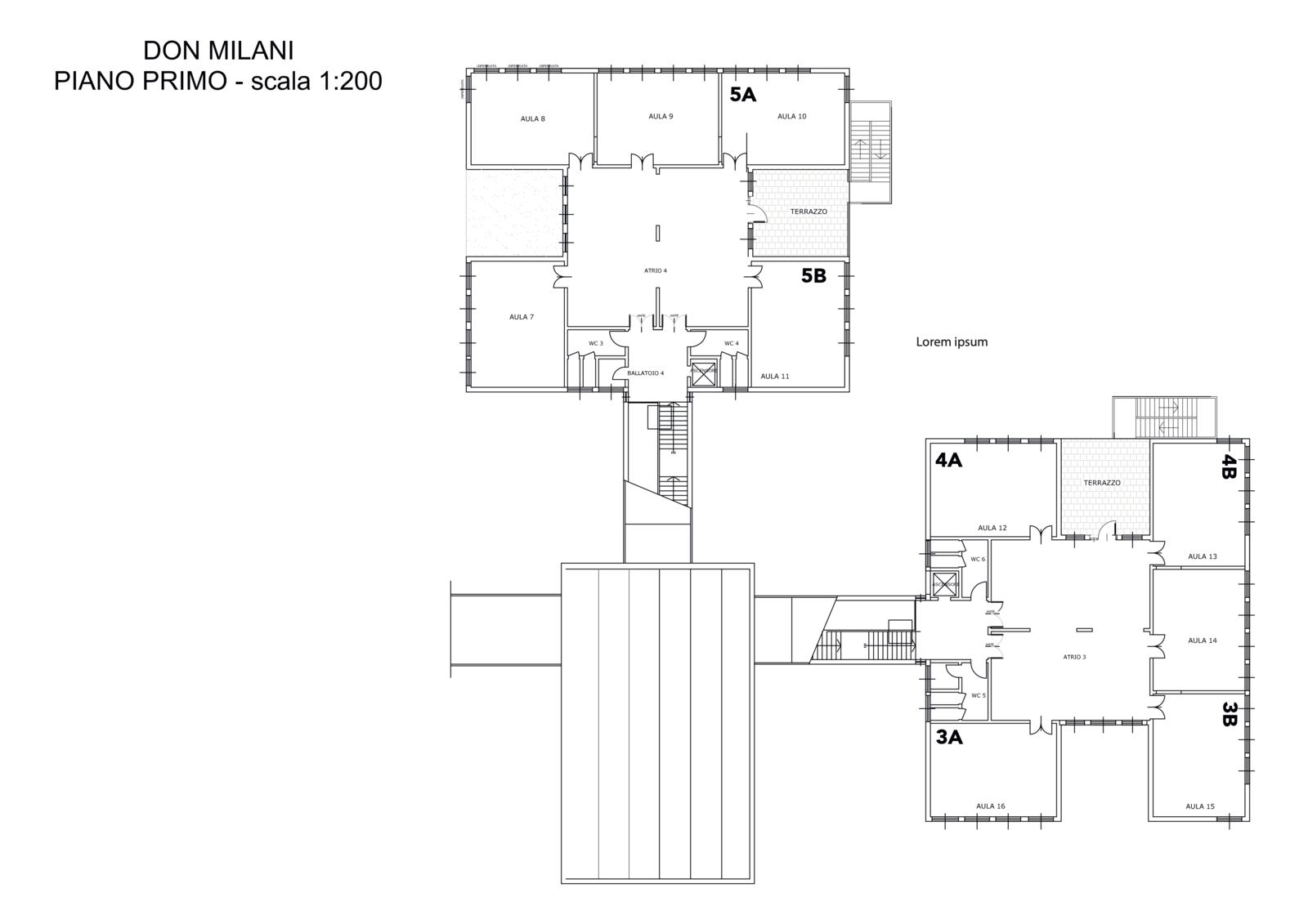
Cliccando sulle planimetrie è possibile individuare il punto di ingresso e il percorso per raggiungere la propria aula.
Piano terra
Piano primo
Tempo scuola
|
Mercoledì 10 settembre 2025:
- classi prime entrano alle 9:30
- tutte le altre classi ore 8:30
|
|
Giovedì 11 e venerdì 12 settembre 2025 le lezioni si svolgeranno dalle 8:30 alle 12:30 SENZA servizio mensa
|
|
Dal 15 settembre:
- 6 ore giornaliere di didattica, mensa dalle ore, 12:30 alle ore 14:30
Gli alunni che non si fermeranno a mensa usciranno alle 12:30. Le lezioni riprenderanno per tutti alle ore 14:30.
|